COD-518 DB 1101A - Bastão para Sistema Duplo Piso(GALVANIZADO)
COD-207 DB 1101A - Bastão para Sistema Duplo Piso (ALUMÍNIO)
Capacidade carga: 1000kg por bastão. Ajuste: 2380 a 2670 mm
Podendo ser fabricado conforme necessidade do cliente.
Trilho TR 3201A (Duplo Piso)
COD-233 Trilho TR 3201A (Trilho duplo-Alumínio)
Trilho duplo fabricado em alumínio para sistema duplo piso.
Modelo de bastão compatível: DB 1101 A
TR 3101A (Duplo Piso)
COD-57 TR 3101A (trilho simples-Alumínio)
Trilho fabricado em alumínio para sistema duplo piso.
Modelo de bastão compatível: DB 1101 A.
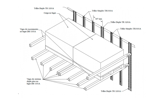
Desenho Técnico da Aplicação do Sistema Double Deck
Esse desenho especifica claramente a aplicação do sistema em um semirreboque que vem utilizando uma carga mais leve onde se utiliza de 2 a 4 vigas por pallete dependendo da carga a ser transportada
Esse desenho especifica claramente a aplicação do sistema em um semirreboque que vem utilizando o máximo de resistência em sistema Double Deck utilizando 4 vigas por pallete.